École Élémentaire Burnaby

Elementary School (K-Grade 6) with childcare facility and community program spaces

Capacity: 300 Kindergarten to Grade 6 students, 60 childcare children

Cost: $30 million

Size: 3910m²

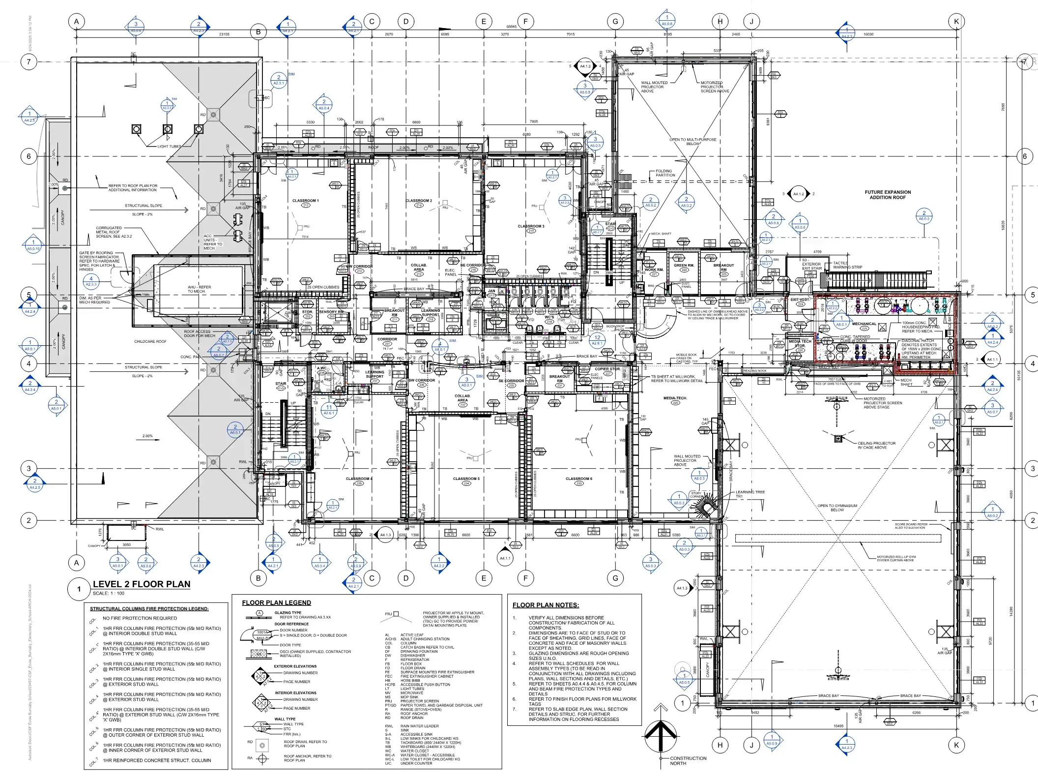
This compact three-storey public elementary school located at the base of Burnaby Mountain responds to site limitations while accommodating 'neighborhoods of learning', community-oriented spaces, and outdoor play and learning areas. These 'neighborhoods' arrange groups of classrooms around shared collaboration spaces, supported by glazed breakout and soft sensory rooms on each floor to create calm, inclusive learning environments.

Nature-inspired design elements—including tree and insect themes—are woven throughout the school and childcare spaces, reinforcing continuity and growth. The library serves as a central learning space featuring a sculptural “learning tree” and soft, informal seating. Designed to achieve greenhouse gas emissions well below LEED Gold targets, the school aims to create a welcoming, sustainable focal point for students and the community. Occupancy is scheduled for August 2027.

Details

My contributions have been key in guiding the project from concept through construction, coordinating closely with consultants, understanding client priorities, and ensuring all design decisions aligned with budget and regulatory requirements. I supported the project team in maintaining design quality, managing schedules, and navigating ministerial and site-specific constraints, helping to ensure a cohesive and successful outcome.

Specifications

Site Area

23,317 m²

Date

2023

Status of the project

Under construction

Tools used

Revit, Bim360, Adobe Suite, Microsoft Suite

Drawings

Eimer Fitzpatrick

Vancouver | +1 (236) 777-2103 | eimerkayafitz@gmail.com

© Eimer Fitzpatrick, 2026