Crescent Heights Academy

Private 5 Storey Elementary & Middle School

Capacity: 800 students (Kindergarten to Grade 12)

Cost: $85 million

Size: 11,310m² (excluding u/g parkade)

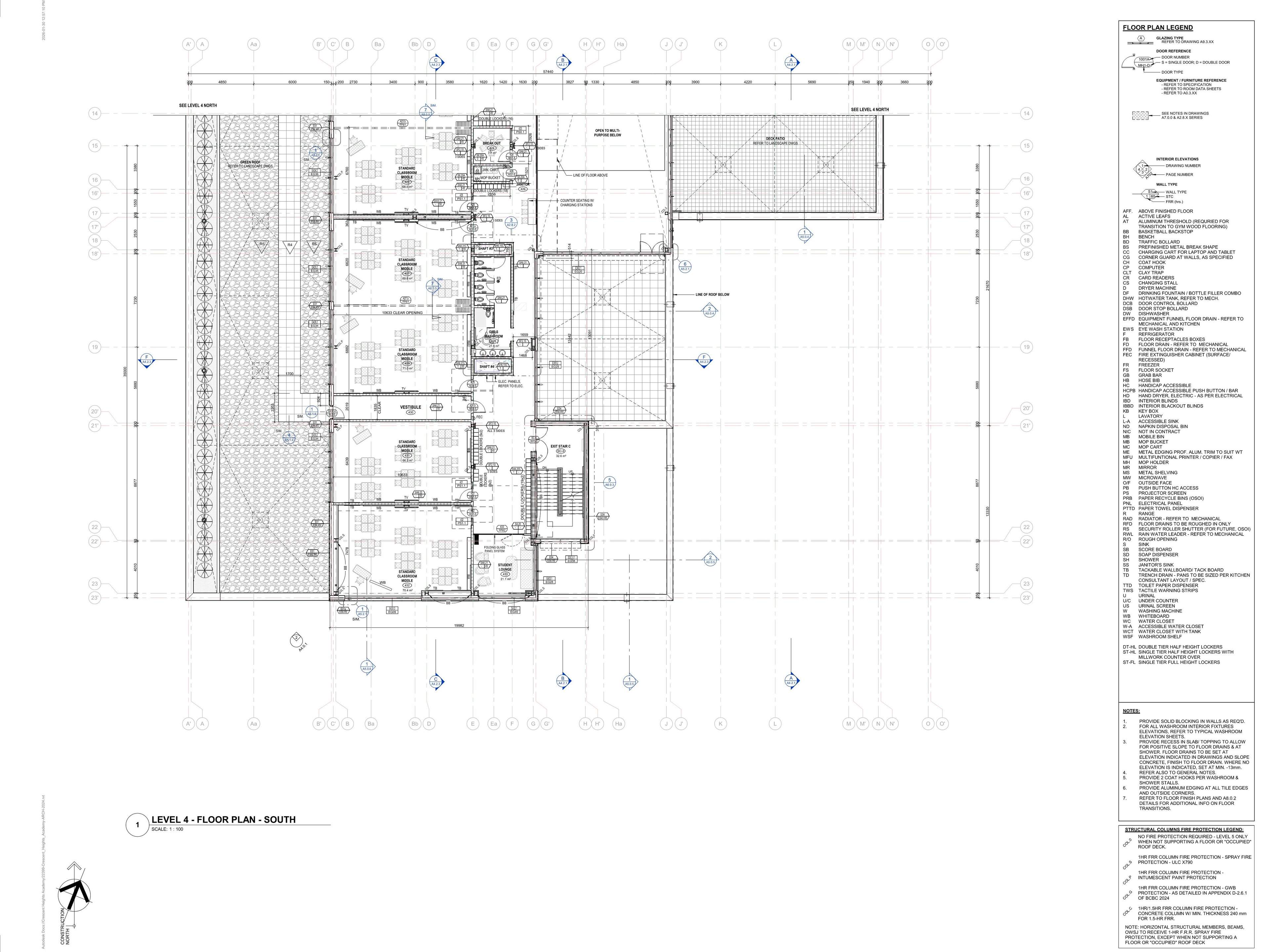
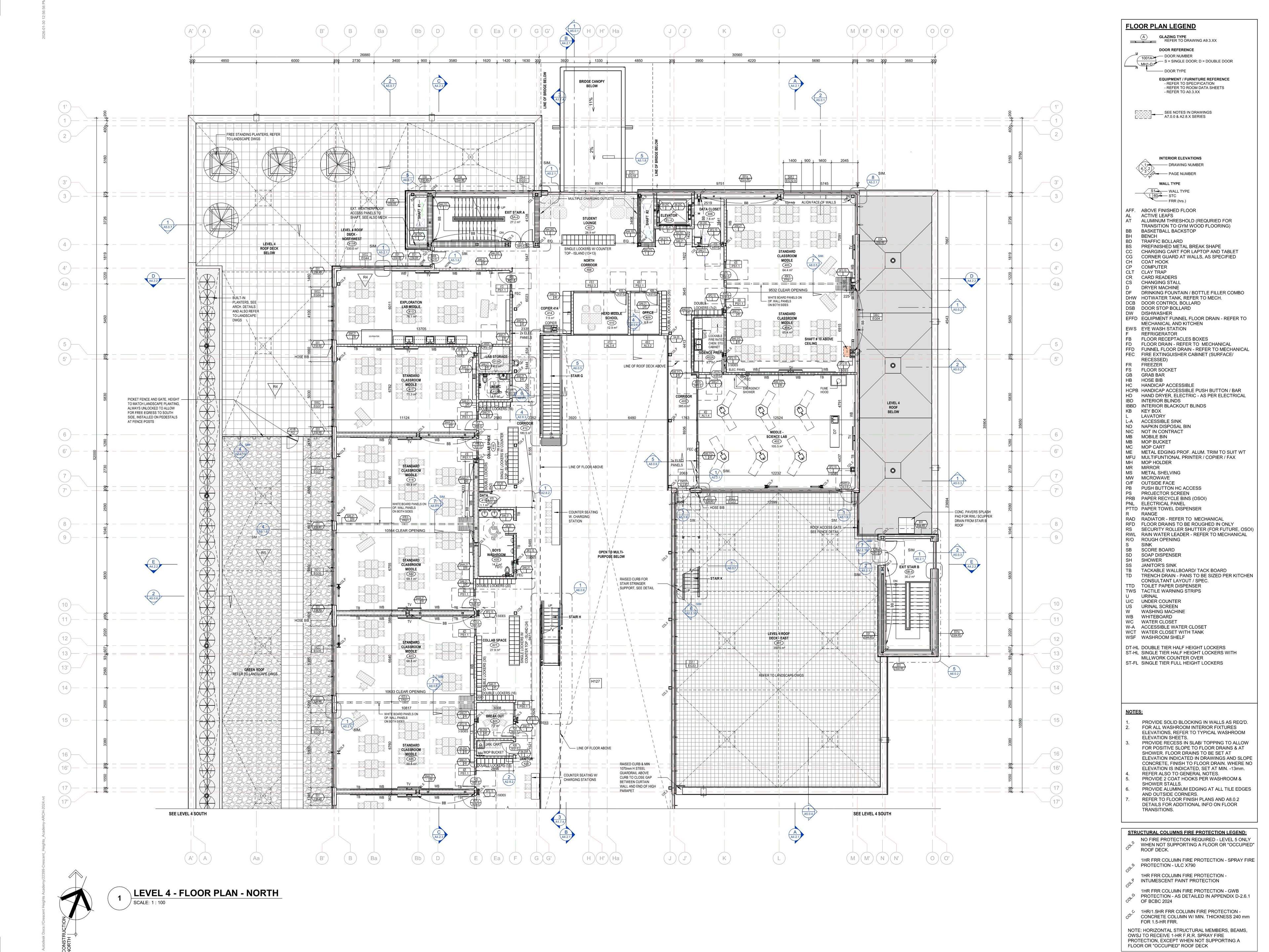
This elevated five-storey private school in Surrey is a rebuild of the existing campus. Site constraints, dramatic elevation changes, and the need to keep the school operational during construction shaped a design focused on vertical circulation. Prioritizing wellness and transparency, the school features a five-storey atrium framed with glulam beams, glazed concords, and stairs, creating a dynamic and diverse educational environment. Intensive interior planting, green walls, and a neutral palette with extensive wood finishes provide a natural, calming atmosphere.

The building includes two gymnasiums, a theatre, art and pottery studios, science and robotics labs, multipurpose, gallery, and dance spaces, a library, and multiple rooftop gardens and patios. Classrooms are organized into educational “neighborhoods” around shared collaboration areas to foster interaction and flexibility.

By seamlessly integrating nature, wellness, and functionality throughout, this school is redefining the educational and student experience. Occupancy is scheduled for August 2028.

Details

As assistant architectural project manager, I supported the design and progress of the project by coordinating closely with consultants,  managing administrative and city permitting tasks, and maintained regular correspondence with the client and city authorities to ensure alignment with project goals and regulations.

I contributed to drawings and helped facilitate design discussions, ensuring the team stayed aligned and the project moved forward smoothly.

Specifications

Area of site

22,815 m2

Date

2025

Status of the project

Under construction

Tools used

Revit, Bim360, Microsoft Suite

Drawings

Eimer Fitzpatrick

Vancouver | +1 (236) 777-2103 | eimerkayafitz@gmail.com

© Eimer Fitzpatrick, 2026